Appartement À Vendre
€ 275.000
Adresse sur demande
- 1081 Bruxelles












- Superficie
- 123m²
- Chambres
- 3
- Salles de bain
- 1
- Balcon
- Oui
- Cave
- Oui
- Ascenseur
- Oui
Description
BRUXELLES - Gaëlle et Sylvain vous présentent en exclusivité ce bel appartement 3 chambres idéalement situé à Koekelberg !
Situé dans un quartier proche des commodités, cet appartement vous séduira par ses volumes généreux et sa belle luminosité.
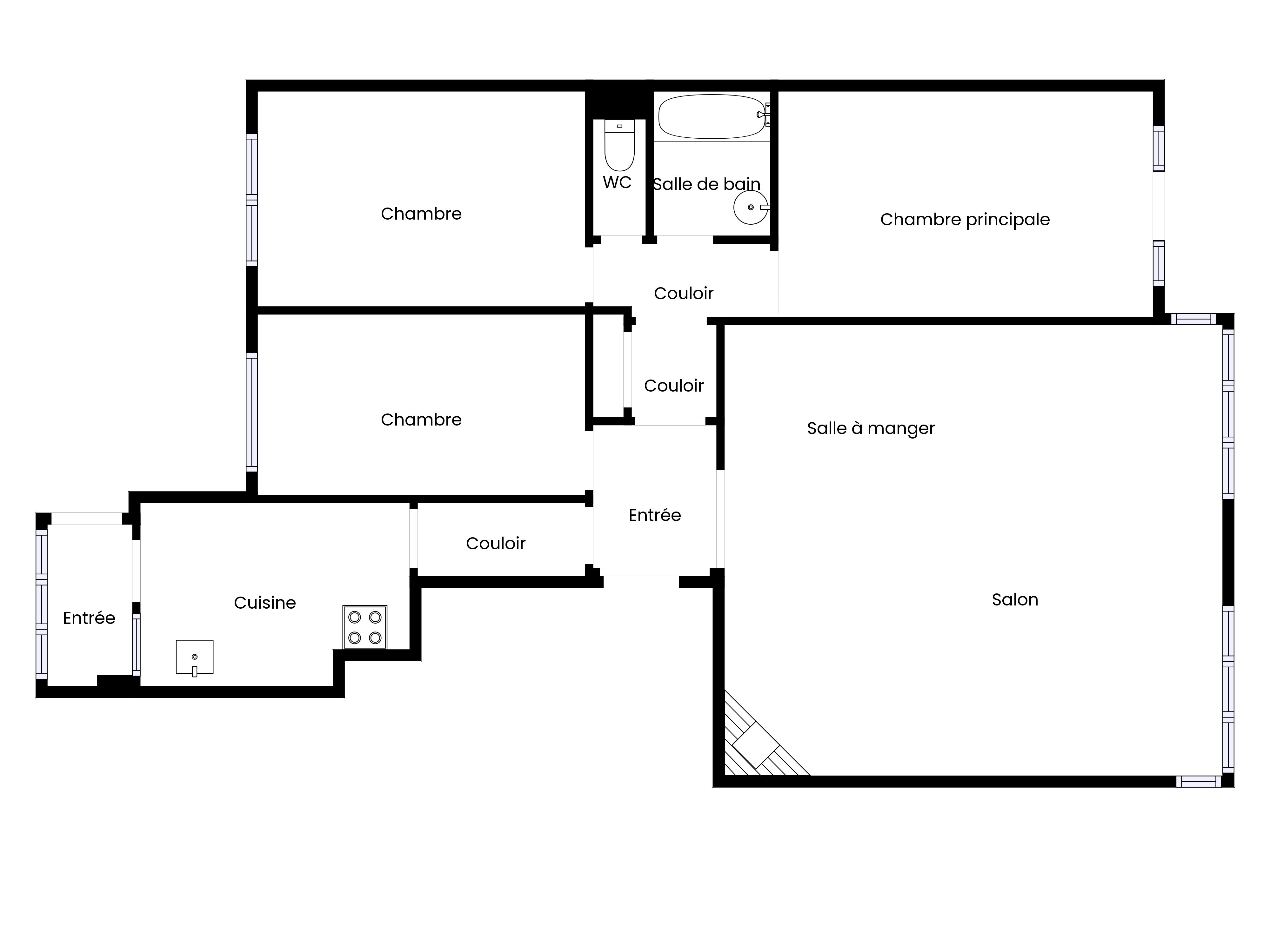
Dès l’entrée, vous découvrez une pièce de vie spacieuse et baignée de lumière, parfaite pour accueillir famille et amis. La grande cuisine indépendante vous offre un espace fonctionnel pour cuisiner en toute convivialité.
L’espace nuit se compose de trois chambres confortables, idéales pour une famille ou pour aménager un bureau à domicile. Vous y trouverez également une salle de bain, un WC séparé, ainsi que de nombreux rangements pour un confort optimal.
En bonus : deux caves privatives, parfaites pour le stockage, et la possibilité d’acquérir un box garage fermé pour 25.000 €, un vrai plus dans le quartier !
Localisation idéale : en face du château du Karreveld, à proximité des transports, écoles, commerces et du parc Elisabeth.
Ne manquez pas cette belle opportunité d’allier espace, confort et situation stratégique à Koekelberg !
Contactez-nous pour organiser une visite et découvrir par vous-même tout ce que cet appartement d’exception a à offrir !
Vous souhaitez plus d’information et/ou une visite?
Une seule agence : Century21 Ever’One : 02 241 21 21 - info@century21everone.be
À titre informatif et non contractuel, sous réserve d'acceptation des vendeurs.
Demande des R.U faite le 05/06/2025.
Situé dans un quartier proche des commodités, cet appartement vous séduira par ses volumes généreux et sa belle luminosité.
Dès l’entrée, vous découvrez une pièce de vie spacieuse et baignée de lumière, parfaite pour accueillir famille et amis. La grande cuisine indépendante vous offre un espace fonctionnel pour cuisiner en toute convivialité.
L’espace nuit se compose de trois chambres confortables, idéales pour une famille ou pour aménager un bureau à domicile. Vous y trouverez également une salle de bain, un WC séparé, ainsi que de nombreux rangements pour un confort optimal.
En bonus : deux caves privatives, parfaites pour le stockage, et la possibilité d’acquérir un box garage fermé pour 25.000 €, un vrai plus dans le quartier !
Localisation idéale : en face du château du Karreveld, à proximité des transports, écoles, commerces et du parc Elisabeth.
Ne manquez pas cette belle opportunité d’allier espace, confort et situation stratégique à Koekelberg !
Contactez-nous pour organiser une visite et découvrir par vous-même tout ce que cet appartement d’exception a à offrir !
Vous souhaitez plus d’information et/ou une visite?
Une seule agence : Century21 Ever’One : 02 241 21 21 - info@century21everone.be
À titre informatif et non contractuel, sous réserve d'acceptation des vendeurs.
Demande des R.U faite le 05/06/2025.
Composition
- Séjours
- 1
- Cuisines
- 1
- Chambres
- 3
- Salles de bain
- 1
- WCs
- 1
Surfaces
- Balcon
- 2,5m²
- Hall d’entrée
- 8m²
- WC
- 1,5m²
- Salon
- 42m²
- Cuisine
- 11m²
- Chambre
- 11m²
- Chambre
- 13m²
- Chambre
- 16m²
- Salle de bain
- 3m²
Caractéristiques
Energie
- Mazout
- Oui
Eco
- Double vitrage
- Oui
Informations légales
- Consommation spécifique d’énergie primaire (kWh/m2)
- 128
- PEB
-

- Émissions annuelles CO²
- 15
- Code unique PEB
- 20250528-0000716065-01-1
- Certificat d'installation électrique/gaz
- Conforme


