Magnifique Duplex À Vendre
€ 429.000
Adresse sur demande
- 1140 Evere















- Superficie
- 116m²
- Chambres
- 3
- Balcon
- Oui
- Cave
- Oui
Description
EVERE / Quartier Notre Dame - Gaëlle et Sylvain vous présentent ce magnifique appartement DUPLEX de 116 m², au 2ème et 3ème étage d'une charmante petite copropriété, idéalement situé dans un quartier vivant et très apprécié.
Ce superbe duplex, entièrement rénové en 2024 - 2025 avec beaucoup de goût et des matériaux de qualité, est en parfait état et offre un espace de vie chaleureux, confortable et moderne.
PEB F - Double vitrage avant & arrière - Electricité conforme (>2050) - Installation gaz conforme (>2030) - Façade isolée - Nouvelle toiture & isolation - Chauffage central individuel
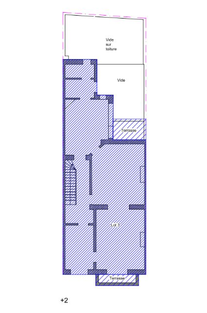
Spacieux et lumineux, il se compose d'un séjour, une salle à manger, une cuisine équipée ultra moderne, de 3 chambres, 2 salles de douche, un espace bureau ou dressing, 2 W.C.'s ainsi qu'une cave pour optimiser le rangement. Un petit balcon à l'arrière du bâtiment vous permettra aussi de profiter du soleil.
Proche de l'OTAN, des commerces, des transports en commun, des grands axes routiers et des écoles, ce quartier calme et convivial est idéal pour les familles à la recherche d'un environnement paisible et proche de tout.
Très belle opportunité à saisir pour les investisseurs et actuellement loué en colocation. Rendement assuré !
Ne manquez pas cette opportunité et contactez-nous dès maintenant pour organiser une visite.
Votre agence N°1 du réseau Century21 Benelux à Bruxelles : Century 21 Ever One - 02/241.21.21 - info@century21everone.be
Destination urbanistique : logement
Renseignements urbanistiques disponibles sur demande à l'agence.
A titre informatif et non contractuel !
Ce superbe duplex, entièrement rénové en 2024 - 2025 avec beaucoup de goût et des matériaux de qualité, est en parfait état et offre un espace de vie chaleureux, confortable et moderne.
PEB F - Double vitrage avant & arrière - Electricité conforme (>2050) - Installation gaz conforme (>2030) - Façade isolée - Nouvelle toiture & isolation - Chauffage central individuel
Spacieux et lumineux, il se compose d'un séjour, une salle à manger, une cuisine équipée ultra moderne, de 3 chambres, 2 salles de douche, un espace bureau ou dressing, 2 W.C.'s ainsi qu'une cave pour optimiser le rangement. Un petit balcon à l'arrière du bâtiment vous permettra aussi de profiter du soleil.
Proche de l'OTAN, des commerces, des transports en commun, des grands axes routiers et des écoles, ce quartier calme et convivial est idéal pour les familles à la recherche d'un environnement paisible et proche de tout.
Très belle opportunité à saisir pour les investisseurs et actuellement loué en colocation. Rendement assuré !
Ne manquez pas cette opportunité et contactez-nous dès maintenant pour organiser une visite.
Votre agence N°1 du réseau Century21 Benelux à Bruxelles : Century 21 Ever One - 02/241.21.21 - info@century21everone.be
Destination urbanistique : logement
Renseignements urbanistiques disponibles sur demande à l'agence.
A titre informatif et non contractuel !
Composition
- Séjours
- 1
- Cuisines
- 1
- Chambres
- 3
- WCs
- 2
- Salles de douche
- 2
Surfaces
- Balcon
- 3m²
- Salles de douche
- 4m²
- Salles de douche
- 2m²
- Bureau
- 7m²
- Cuisine
- 13m²
- Chambre
- 15m²
- Chambre
- 11m²
- Chambres à coucher
- 11m²
Caractéristiques
Energie
- Gaz
- Oui
Eco
- Double vitrage
- Oui
Informations légales
- Consommation spécifique d’énergie primaire (kWh/m2)
- 332
- PEB
-

- Émissions annuelles CO²
- 66
- Code unique PEB
- 20250904-0000726167-01-6
- Consommation théorique totale d’énergie primaire (annuelle)
- 38589
- Certificat d'installation électrique/gaz
- Conforme


